Refúgio do século 16 mescla aço corten e paredes de pedra
Com a reforma, o refúgio espanhol ganhou astral contemporâneo. Quando não abriga a família em feriados e festas de fim de ano, é alugado para turistas
Mesmo em ruínas, a casa medieval atraía olhares curiosos. Na arquiteta espanhola Anna Noguera, despertou o desejo irrefreável de viver ali. Em seu imaginário fértil, vislumbrou a natureza acolhedora da construção de 500 anos no histórico Barri Vell, em Girona. Nem a fragilidade da estrutura, em alguns pontos ainda de pé à custa de improvisadas colunas de madeira, a amedrontou. Ela, o marido e os filhos se animaram com a possibilidade de deixar a agitada Barcelona e decidiram encarar com valentia a reforma que prometia ser extensa (de fato, durou três anos e meio). No meio da obra, questões profissionais levaram o casal a adiar o sonho e permanecer na capital catalã. Mas eles protelaram apenas em parte. Por enquanto, Anna e o clã desfrutam do endereço em datas especiais. Quando não estão lá, aproveitam para alugá-lo a turistas. Essa ideia nasceu junto com o projeto de transformação, que setorizou a casa de três andares de uma forma inteligente: basicamente, os dois pisos superiores (que constituem um dúplex) concentram os espaços mais usados pelo quarteto. Já o primeiro pavimento é reservado aos eventuais convidados. “O layout permite dividir a locação por andar ou reservar o lugar para a família durante feriados e festas de fim de ano”, explica Anna. “Futuramente, pensamos em morar na casa.” Ao pé de uma montanha, o centro velho de Girona dá a agradável sensação de proximidade com a natureza. Também é um convite irresistível a passear de bike, caminhar ao léu ou simplesmente deter-se numa janela e observar a vista carregada de história. Tudo indica que a primeira construção do lote era da época do Império Romano – a arquiteta encontrou vestígios desse período durante escavações no subsolo para criar a garagem. Disposta a desvendar esse passado, Anna visitou até o departamento de registros de obras. Comprovou que sua morada medieval estava sobre um sítio realmente bem mais antigo. Foi então obrigada pela prefeitura a cobrir as ruínas do subsolo com uma lâmina de metal antes de concretar o piso. Caso um dia venda o imóvel, a medida permite transformar o local em ponto de escavações arqueológicas.











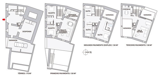
Distribuição vertical
A planta divide-se em térreo, primeiro e segundo pavimentos (esse último, um dúplex). Nos dois pisos superiores estão dispostos os principais ambientes, como a sala íntima, a cozinha principal e as três suítes. Todos os andares têm acesso independente à garagem, no térreo.
Área: 565 m²; Colaboradores do projeto: August Fabregat Güell e Juan Manuel Ribera de Frías; Projetos elétrico e hidráulico: Josep Maria Canals; Construção: Caiba S.A.; Serralheria: Ferros Girona Cabratosa; Iluminação: Susaeta Iluminación